25.02.2026
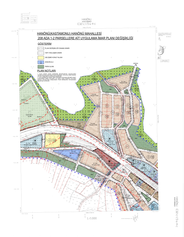
BELEDİYEMİZ TARAFINDAN YAPTIRILAN HANÖNÜ MAHALLESİ 208 ADA 1 VE 2 PARSELLERİ KAPSAYAN İMAR ADASINDA UYGULAMA İMAR PLANI VE NAZIM İMAR PLANI DEĞİŞİKLİĞİ 11.02.2026 TARİH VE 16 SAYILI BELEDİYE MECLİSİ KARARI İLE ONAYLANARAK, İMAR PLANLARI 25.02.2026 TARİHİNDEN 1 AY SÜREYLE ASKIYA ÇIKARTILMIŞTIR.